323 Brookwood AvenueJackson, GA 30233
Due to the health concerns created by Coronavirus we are offering personal 1-1 online video walkthough tours where possible.




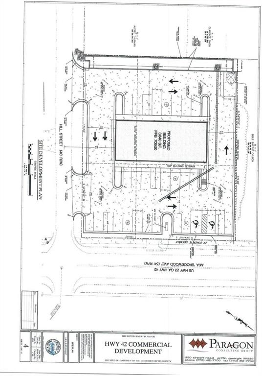
This 0.61-acre vacant lot zoned C-2 (General Commercial), offers a prime development opportunity in a growing submarket. Situated in Butts County, this level lot provides excellent visibility and accessibility within the Jackson community. With an already approved site plan the C-2 zoning allows for diverse commercial uses, including professional offices, medical clinics, retail storefronts, or automotive services. Jackson is experiencing steady development, making this an ideal time to secure a footprint in a high-demand commercial corridor. The lot is primarily level and clear, minimizing site preparation costs for new owners. Located near established residential areas and local thoroughfares, ensuring a consistent customer base and easy transit for employees.
| a week ago | Price changed to $249,900 | |
| a week ago | Listing updated with changes from the MLS® | |
| 3 months ago | Status changed to Active | |
| 3 months ago | Listing first seen on site |
Listings identified with the FMLS IDX logo come from FMLS and are held by brokerage firms other than the owner of this website and the listing brokerage is identified in any listing details. Information is deemed reliable but is not guaranteed. If you believe any FMLS listing contains material that infringes your copyrighted work, please click here to review our DMCA policy and learn how to submit a takedown request.
© 2017-2026 First Multiple Listing Service, Inc.
Did you know? You can invite friends and family to your search. They can join your search, rate and discuss listings with you.