5649 Ernest WayFlowery Branch, GA 30542
Due to the health concerns created by Coronavirus we are offering personal 1-1 online video walkthough tours where possible.




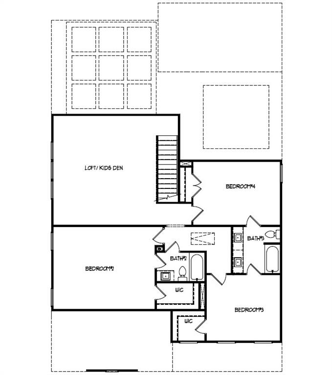
The Everglade Plan built by Walker Anderson Homes is a Beautiful Home with Primary Bedroom on the Main Level in the Charming Hemingway Community in Downtown Flowery Branch and within walking distance to Lake Lanier's Marinas, Restaurants, and Recreational Offerings. On a Cul-de-sac Homesite, the Home features Expansive 9-Foot Ceilings on both the Main and Upper Levels, and a Covered Porch. The Kitchen is open to the Family Room & Breakfast Room, has Painted Cabinets with Soft-Close Cabinet Doors & Drawers and includes a 36" Gas Cooktop with Cabinet Vent Hood, Wall Oven, Wall Microwave, all complimented by a Large Island with Single-Bowl Sink. The Primary Bedroom Suite on main level is Spacious and complete with a Double Tray Ceiling with Cove Crown Trim, Two Large Walk-In Closets, Double Vanity, Soaking Tub, and Separate Shower with a Shower Bench and Frameless Glass Enclosure. You will also find a Large Loft/Media Room Upstairs along with Three Additional Bedrooms each with a Walk-In Closet, and Two Additional Full Bathrooms. Home is under construction with a projected completion in Spring of 2026. Ask about your $35K Incentive with use of preferred lender. *Secondary Photos are Stock Photos
2 weeks ago | Listing first seen on site | |
2 weeks ago | Listing updated with changes from the MLS® |
Listings identified with the FMLS IDX logo come from FMLS and are held by brokerage firms other than the owner of this website and the listing brokerage is identified in any listing details. Information is deemed reliable but is not guaranteed. If you believe any FMLS listing contains material that infringes your copyrighted work, please click here to review our DMCA policy and learn how to submit a takedown request.

© 2017-2025 First Multiple Listing Service, Inc.
Did you know? You can invite friends and family to your search. They can join your search, rate and discuss listings with you.