3676 Brookhaven Manor Crossing NEAtlanta, GA 30319
Due to the health concerns created by Coronavirus we are offering personal 1-1 online video walkthough tours where possible.




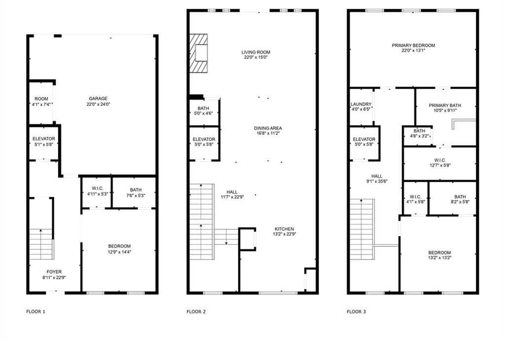
3 story high luxury townhome built with expensive natural stones and solid bricks with 3 bedrooms and 3.5 bathrooms locates at Lenox mall area. Walking distance to Phipps Plaza, Nordstrom Store, Lenox Square, restaurants, office buildings and Marta stations. High quality hardwood floors in all rooms, except bathrooms. Tiles in all bathrooms. Stairs are hardwood floors also. New back deck. The 2 story entry foyer sets a grand tone as soon as you step inside, offering a sense of space and openness. A bedroom with a full bathroom on the main level adds convenience to work from home to use it as office. The 2nd level likes the heart of the home, with a large kitchen featuring high-end appliances and granite countertops, perfect for both everyday cooking and entertaining. The spacious family room with its coffee ceiling and fireplace provides a cozy elegant atmosphere, while the dining space between the kitchen and family room offers a seamless flow for hosting gatherings. The custom-painted half bathroom adds a touch of personality and style to the space. Moving upstairs to the third floor, the master bedroom and additional bedroom offer privacy and comfort. The wet bar cabinets near the master bedroom are a thoughtful addition, providing convenience for late-night snacks or wine or morning coffee without having to go downstairs. The layout of this townhome maximizes both functionality and elegance, creating a welcoming environment for everyday living and entertaining alike. Elevator shaft space is ready for buyer to install an elevator. The design speaks to a level of sophistication and comfort that many homebuyers aspire to. The home is well cared and maintenance that's often hard to find. Plus, it is nestled inside the subdivision, away from Peachtree Road's traffic noise, adds to its appeal. 2 car garage, private entry, security system, and surround sound stereo enhance the convenience and security of the home. Expensive plantation shutters for all windows. Well-appointed master suite with double vanities, jacuzzi tub, spacious shower, toilet room and a walk-in closet with built-in cloth shelf. HOA fee covers landscaping, termite bond, waster, sewer and garbage services. Easy and relax life for busy professionals or retired elderly who want to travel the world. Enjoy the home and your life.
3 weeks ago | Price changed to $780,000 | |
3 weeks ago | Listing updated with changes from the MLS® | |
4 weeks ago | Listing first seen on site |
Listings identified with the FMLS IDX logo come from FMLS and are held by brokerage firms other than the owner of this website and the listing brokerage is identified in any listing details. Information is deemed reliable but is not guaranteed. If you believe any FMLS listing contains material that infringes your copyrighted work, please click here to review our DMCA policy and learn how to submit a takedown request.

© 2017-2025 First Multiple Listing Service, Inc.
Did you know? You can invite friends and family to your search. They can join your search, rate and discuss listings with you.