504 Charleston PlaceVilla Rica, GA 30180
Due to the health concerns created by Coronavirus we are offering personal 1-1 online video walkthough tours where possible.




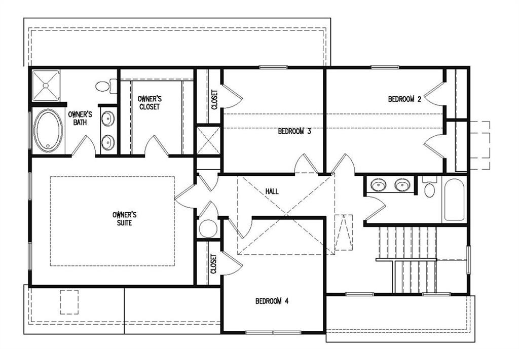
USDA Eligible! Home will be complete in 2 months. Plan 4623 T / Features a Craftsman style exterior with a combination front elevation of stone, Hardiplank and board & batten. This plan includes 4 bedrooms and 2.5 baths with a 2-car garage, smooth ceilings throughout, and 9' second-floor ceilings. The main floor features a spacious great room with a fireplace, dining room, large kitchen with granite countertops, and stainless appliances. The upper floor features a spacious primary suite with dual sink vanity, garden tub, separate shower, and large walk-in closet, as well as 3 additional bedrooms and another full bathroom with dual sink vanity. Decorating options are still available for selection! Builder will contribute $10,000 toward closing costs with preferred lender. Blinds, Screens, Glass Shower Door in Owner's Suite and Garage Door Opener added at no charge to Buyer! Home pictured is an example of home to be built.
a month ago | Listing first seen on site | |
a month ago | Listing updated with changes from the MLS® |
Listings identified with the FMLS IDX logo come from FMLS and are held by brokerage firms other than the owner of this website and the listing brokerage is identified in any listing details. Information is deemed reliable but is not guaranteed. If you believe any FMLS listing contains material that infringes your copyrighted work, please click here to review our DMCA policy and learn how to submit a takedown request.

© 2017-2025 First Multiple Listing Service, Inc.
Did you know? You can invite friends and family to your search. They can join your search, rate and discuss listings with you.